沙鹿區鎮南路|黃金透店整棟出租|近靜宜

臺中市-沙鹿區鎮南路二段
10人瀏覽
200,000 元/月

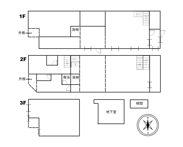
格  局:
開放式格局
屋  齡:
44年
權狀坪數:
333.92坪
樓  層:
1~3樓
房仲-值班人員
種籽地產有限公司 詳情
永慶不動產 -北屯松竹旱溪店 我的店舖
0966553929 0424362099 加LINE好友

基本資訊


房屋資料
類型
透天厝
格局
開放式格局
樓層/樓高
1~3樓
屋齡
44年
產權登記
車位
是否有電梯
租屋守則
短期租賃
不可以
開伙
不可以
養寵物
不可以
性別要求
不限
押金
身份要求
不限
房東同住

生活&交通機能


  • 7-ELEVEN鎮欣門市 34m
  • 三奇便利商店 101m
  • 7-ELEVEN北忠門市 310m
  • 7-ELEVEN靜宜門市 480m
  • 全家便利商店沙鹿鎮南店 499m
  • 統新超商 612m
  • 7-ELEVEN鹿心門市 693m
  • 至我男飾名店 72m
  • 成貴行 364m
  • 奧斯卡商行 404m
  • 敘茶時光茶業商行 446m
  • 必勝客靜宜外送店 103m
  • Pizza Factory披薩工廠台中沙鹿店 333m
  • 兒童公園 286m
  • 青山公園 460m
  • 大璽停車場 357m
  • 台中市沙鹿區公所民眾洽公停車場 496m
  • 光田停車場 566m
  • 鎮南路停車場 619m
  • 市立北勢國中 463m
  • 台中市立圖書館沙鹿深波分館 574m

特色描述


🩵位於25米鎮南路上,沙鹿市區,機能佳
🩵18米超大面寬,可規劃三店面、停五台車
🩵深度約40米,超大空間好規劃,樓上可規劃套房、辦公室、員工宿舍
🩵近中港路、未來捷運藍線
🩵適合中醫診所、寵物店、超市,餐廳
🚫禁八大行業

房屋問答