台中龍井《昇祐薪巢》㊣沙田路上方正三房+車位

臺中市龍井區沙田路六段
7人瀏覽
998
單  價:
26.61萬/坪

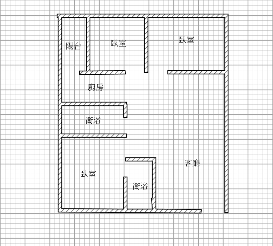
格  局:
3房2廳2衛
屋  齡:
14年
權狀坪數:
37.50坪
樓  層:
2/9樓
朝  向:
坐西朝東
溫鳳如
金諺不動產仲介經紀有限公司
永慶不動產 -大肚海線加盟店 我的店舖
0913666987 0426993666

基本資訊


房屋資料
類型
大樓/華廈
格局
3房2廳2衛
樓層/樓高
2/9樓
屋齡
14年
朝向
坐西朝東
管理費
2,897/月繳
帶租約
車位/類型
有/機械式車位
坪數說明
主建物
22.82 坪
附屬建物
2.8 坪
共用坪數
11.88 坪
土地坪數
5.97 坪
總坪數
37.50 坪

生活&交通機能


  • 全家便利商店龍井沙田店 95m
  • 7-ELEVEN鑫井源門市 415m
  • 全家便利商店龍井龍山店 428m
  • 山腳村老人會館 255m
  • 停車場 322m
  • 市立龍山國小 445m
  • 喜美超市沙田店 467m

特色描述


💥歡迎上店 來電 委買、委賣!讓最熱誠的團隊為您服務💥

本物件優點↓

 
⭐️1.格局方正,採光佳
⭐️2.鄰近市區 簡單整理即可入住
⭐️3.空間好規劃 交通四方八達
⭐️4.屋況佳 生活機能佳
⭐️5.物美價廉 近學區
⭐️6.投資自用兩相宜 格局亮麗
⭐️7.看屋必喜

🎯聯賣效益|業界唯一|千店聯賣
🎯跨區域、跨四品牌、跨產品銷售
🎯價金履約|保證服務
🎯業界最安全建經公司
🎯全程保障買賣方安全
🎯嚴選特約代書
🎯作業流程SOP化、系統化
🎯讓交易流程更安全

🏆敬請指名: 💎溫鳳如-0913-666-987

🏆敬請指名: 💎溫鳳如-0913-666-987

🏆敬請指名: 💎溫鳳如-0913-666-987

歡迎委託出售、聯賣效益|業界唯一|千店聯賣|快速成交、還有更多優點!建議您來電約看!邀請您的蒞臨賞屋~好的價格是用談的,不是用等的,歡迎出價談!!我們誠心地為您服務。

房屋問答


熱門推薦物件


龍山國小便宜公寓TB02366734
龍井區-沙田路六段
公寓 5/5樓 24.58坪
498
龍山國小便宜公寓TB02366734
龍井區-沙田路六段
公寓 5/5樓 24.58坪
498
低總價|龍井名門鄉園3房2衛3陽台朝南
龍井區-沙田路六段
大樓/華廈 3/13樓 30.21坪
650
專簽3年屋裕國豐盛2房平車
龍井區-沙田路六段
大樓/華廈 9~12/12樓 34.42坪
1,058