竹東市區首購美裝潢三房平車

新竹縣竹東鎮0 御花園
3人瀏覽
888
單  價:
20萬/坪

格  局:
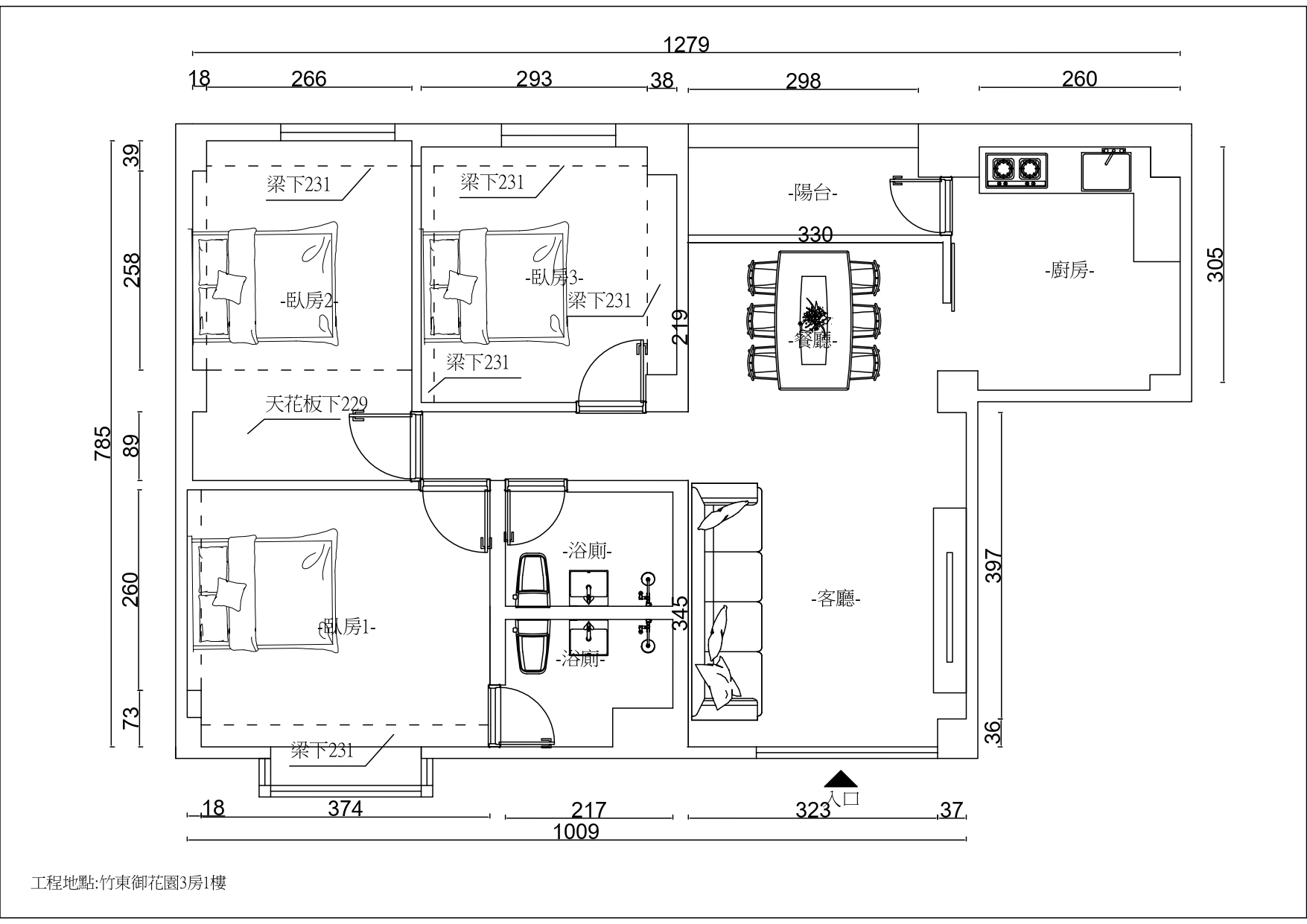
3房2廳1衛1廚房-1陽台
屋  齡:
32年
權狀坪數:
43.94坪
樓  層:
1/6樓
社  區:
房仲-湯鵬吉
陞寶開發有限公司 詳情
永慶不動產 -延平賦格加盟店 我的店舖
0923222555

基本資訊


房屋資料
類型
大樓/華廈
格局
3房2廳1衛1廚房-1陽台
樓層/樓高
1/6樓
屋齡
32年
裝潢程度
中檔裝潢
管理費
1,500/月繳
帶租約
車位/類型
有/平面式車位
坪數說明
主建物
27.09 坪
附屬建物
2.98 坪
共用坪數
13.87 坪
土地坪數
8.9 坪
總坪數
43.94 坪

生活&交通機能


  • 永記米行 13m
  • 茂松水果行 18m
  • 東興商店 55m
  • 金泰山銀樓 67m
  • 新榮松商店 94m
  • 啟發鐘錶眼鏡行 102m
  • 日月光眼鏡行竹東二店 103m
  • 今日肉品行 107m
  • 新巧雅服飾店 115m
  • 盛進蛋行 115m
  • 跨躍商店 135m
  • 昌富布行 160m
  • 好彩頭服飾 166m
  • 濱江花室竹東店 189m
  • 日月光眼鏡行竹東店 194m
  • 新思維竹東 198m
  • 象印經銷東圓電器行 249m
  • 自然品味治裝間 258m
  • 緹詩娜dicila琦美特選店 266m
  • 資生堂東京櫃琦美 266m
  • 華歌爾芳群百貨店 268m
  • 聞喜堂禮品中心 268m
  • 美光眼鏡 276m
  • 珍珍服飾中心 277m
  • 奇威名品KeyWear麥登店 278m
  • 柯尼卡七彩數位影像中心 280m
  • 鴻星布行 280m
  • 無毒的家竹東店 281m
  • 思夢樂竹東店 284m
  • 營養銀行東寧門市 289m
  • 育樂釣具行 290m
  • 隆基舊貨行 297m
  • 奇威男飾 300m
  • 金瑞茂銀樓 305m
  • 伊蕾名店新竹竹東店 306m
  • 鑽石禮服出租 307m
  • 野馬屋 318m
  • 排行榜服飾 327m
  • 新華光眼鏡行 330m
  • 遠東眼鏡行 336m
  • 寶島鐘錶竹東店 344m
  • 資生堂東京櫃建明 344m
  • 今生金飾金寶山銀樓 350m
  • BALENO 353m
  • 一盃如意茶 377m
  • 金泰銀樓 379m
  • 金壽山銀樓 383m
  • 芃諭名品賽若芬 386m
  • 花旗鮮花店 391m
  • 華歌爾綺萊服飾 393m
  • 寶島眼鏡竹東長春路店 395m
  • 愛的婚紗攝影社 396m
  • 大昇百貨行 405m
  • 緹詩娜dicila采林特選店 407m
  • 資生堂東京櫃采林生活百貨 407m
  • 遠東媚力服飾精品 408m
  • Mini Deer新竹東寒風女裝 417m
  • 真愛密碼金都銀樓 419m
  • 東隆皮件行 419m
  • 東京隱形眼鏡竹東店 420m
  • 林醫院 59m
  • 新竹縣私立長安老人養護中心 93m
  • 新竹縣竹東鎮衛生所附設居家護理所 135m
  • 宏安中醫醫院 208m
  • 竹信醫院 275m
  • 7-ELEVEN崠豪門市 78m
  • 7-ELEVEN東宏門市 164m
  • OK便利商店竹東信義店 199m
  • 7-ELEVEN竹東門市 222m
  • 全家便利商店竹東鎮金店 314m
  • 7-ELEVEN商華門市 382m
  • 全家便利商店竹東興仁店 408m
  • 全家便利商店竹東新商華店 428m
  • OK便利商店竹東長興店 429m
  • 中華郵政竹東郵局 108m
  • 中華郵政竹東自助郵局 119m
  • 中華郵政竹東長春郵局 401m
  • 中華郵政竹東長春自助郵局 401m
  • 竹東鎮中央市場 128m
  • 竹東鎮客家傳統市集 264m
  • 竹東鎮商華市場 371m
  • 竹東客家戲曲公園 165m
  • 竹東水岸廣場 177m
  • 全聯福利中心竹東仁愛 210m
  • 美廉社竹東中正二店 253m
  • 仁愛超級商店 276m
  • 美廉社竹東東寧店 392m
  • 泊車趣停車場竹東仁愛停車場 223m
  • 誠泰資產管理股份有限公司樹杞林公有停車場 265m
  • 泊車趣停車場竹東信義立體停車場 287m
  • 應安停車場竹東長春場 302m
  • 停一平面停車場 339m
  • 新竹縣教育研究發展暨網路中心停車場 359m
  • 金典文化廣場竹東店 255m
  • 春木手工窯烤披薩 287m
  • 達美樂竹東北興二段店 297m
  • LuLuHouse pizza 314m
  • 竹東鎮大同來寮廣場 316m
  • 縣立竹東國小 381m
  • 縣立中山國小 428m
  • 竹東火車站 356m

特色描述


首購族福音超低總價竹東市中心美裝潢三房獨立平面大車位5分鐘上68快速道路生活機能超好 屋況好可直接住

房屋問答


社區介紹


御花園

竹東鎮-榮樂街