🔥【專任限定】元鈞坐忘山|B 棟 4F 樹梢景 3 房+同層三連號平車 4,480 萬(可談)

臺中市北屯區0
0人瀏覽
4,480
單  價:
46萬/坪

格  局:
3房2廳2衛
屋  齡:
0年
權狀坪數:
97.35坪
樓  層:
4/22樓
朝  向:
坐北朝南
房仲-林詠聰
七期龍門特許加盟店/經紀員 詳情
台灣房屋 -無 我的店舖
0966124810 加LINE好友

基本資訊


房屋資料
類型
大樓/華廈
格局
3房2廳2衛
樓層/樓高
4/22樓
屋齡
0年
朝向
坐北朝南
帶租約
車位/類型
有/平面式車位
坪數說明
主建物
39.61 坪
附屬建物
4.12 坪
共用坪數
22.5 坪
土地坪數
18.61 坪
車位坪數
31.11 坪
總坪數
97.35 坪

生活&交通機能


特色描述


🔥【專任限定】元鈞坐忘山|B 棟 4F 樹梢景 3 房+同層三連號平車 4,480 萬(可談)
(參考月付:貸 80%/30 年/年利率 2% → 約 132,472 元/月;寬限期僅付利息 → 約 59,733 元/月;實際以銀行核定)

✨ 特色(先看重點)

14 期正核心 × 首排綠景:面對大尺度公園綠海,土地與居住價值雙保值。

樹梢靜景・三面採光:4F 高度正對樹梢,日日見綠,日照通風到位。

室內約 43.7 坪大三房:客餐分區、雙衛開窗,收納動線好規劃。

同層三連號平面車位:停靠無痛,大型休旅輕鬆進出。

機能一次到位:洲際球場、小巨蛋、百貨生活圈在側;休閒 × 展演 × 採買一次擁有。

高規公設 × 物業:溫水泳池、Lounge Bar、閱覽室、健身房… 雨天也不無聊。

稀有釋出:本戶樓層景觀位稀少,錯過難再有。

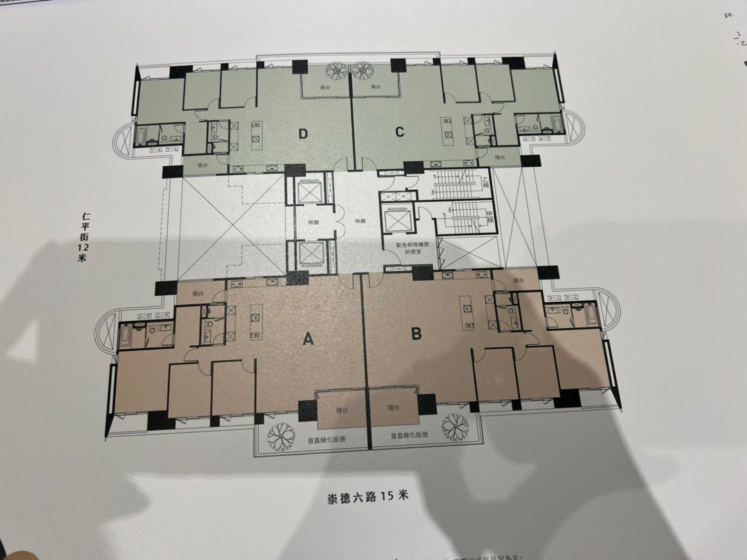
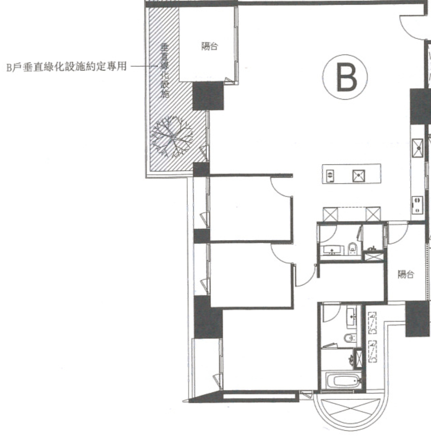
🧾 物件內容(以權狀與現場為準)

建坪|97.35 坪(主 39.61/附 4.12/公 22.50/車位 31.11)

室內面積|主+附 約 43.7 坪

格局|3 房 2 廳 2 衛

樓層|B 棟 4F(三面採光,客廳朝南)

車位|同層三連號坡道平面(大型休旅好停)

工期|預售興建中,預計 2027 Q3–Q4 完工交屋

管理費|待定(完工前公告)

🧮 交屋後房貸示意(年利率 2%、本息 30 年)

貸 80% → 約 132,472 元/月

貸 70% → 約 115,913 元/月

貸 60% → 約 99,354 元/月

貸 50% → 約 82,795 元/月

實際成數、利率與月付以銀行鑑價與審件為準;寬限期前期僅付利息可再降低月付。

📌 預售・交易備註

交易型態:預售案,依建商規範辦理;可否轉約、手續費以合約為準。

付款節點:工程期按建商請款表繳納;權利金/換約手續費通常需自備,多不可併入房貸。

🧭 買方專屬(單一窗口,更省心)

我可以:跨平台配件、精準過濾帶看、合約/產權逐條檢核、交屋時程控管。
我擁有:14 期實價資料庫+議價模型,協助你設定目標價與出價策略。
你可以:把預算/坪數/車位需求告訴我;任一平台看到喜歡的案子,我都能代為洽談並排程。
你將擁有:專屬窗口與透明流程,從貸款試算、裝潢顧問到點交,一次完成。

🎁 免費服務內容

產權/預售契約審查|
稅費試算|
區域行情|
裝潢顧問

📞 預約賞屋|立即諮詢

林詠聰|台灣房屋七期龍門特許加盟店
Line/行動:0966‑124‑810

台灣房屋七期龍門特許加盟店|富昇不動產有限公司
不動產經紀人:楊政忠(113)中市經字第 01477 號

價格是談出來的;開價 ≠ 成交價。
資訊若與現場或地政資料有差異,以現場為準。親友介紹成交贈感謝紅包 🎁
📌 9 月最新:換屋售舊最長 18 個月;需與承貸銀行切結,是否承作與成數以各行審件為準。
💌 親友買房歡迎介紹,成交致贈感謝紅包 🎁

房屋問答


熱門推薦物件


崇德文心大2房車位✅G6捷運宅✅社區最優
北屯區-0
大樓/華廈 2/18樓 34.29坪
1,358
北屯太原車站|一層一戶高投報湯屋全新電梯7套
北屯區-0
透天厝 1~5/5樓 68坪
3,250
崇德漢口商圈香格里拉大三房平車
北屯區-0
大樓/華廈 3/7樓 75.86坪
1,731
東山商圈孩子國視野裝潢三房車位
北屯區-0
大樓/華廈 14~15/15樓 43.74坪
1,480